#2к кв для творческой девушки
#2к кв для творческой девушки
До и после

2к кв для творческой девушки

Площадь:
72м²
Стиль дизайна:
Авторский
Тип обьекта:
Жилая недвижимость
Заказчик:
Молодая девушка
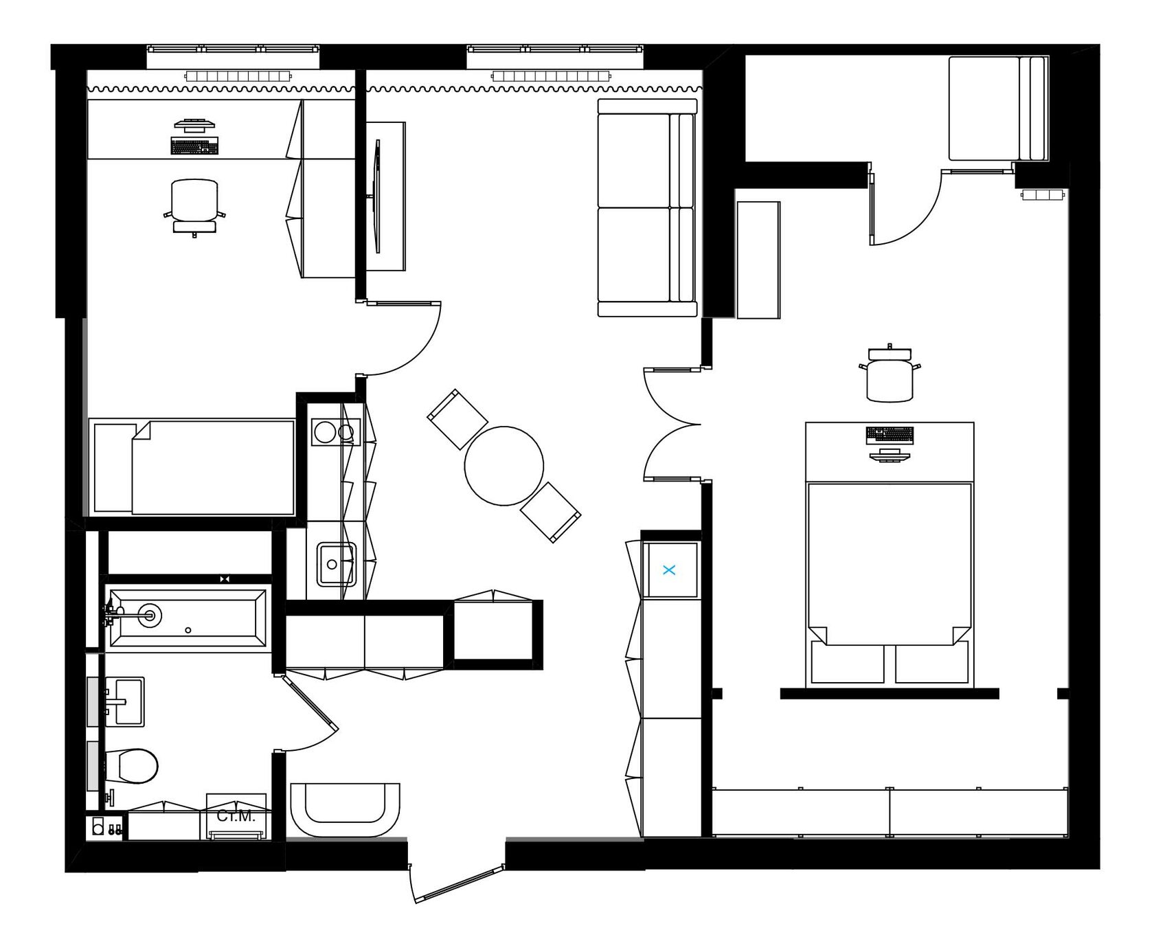
Квартира изначально покупалась под перепланировку, поэтому у хозяйки была договоренность с застройщиком - сдавать квартиру без перегородок. Это значительно облегчило дальнейшие процессы.
Нам было необходимо сделать просторную кухню-гостиную, спальню с гардеробной комнатой, ванную комнату и кабинет, который в последствии станет детской. Согласовали планировку c первого раза.

Изначально важным фактором было сделать как можно больше под готовую мебель, но с уходом икеи мы просто заменили позиции на заказные. Так изначально были сделаны и рассчитаны стены под готовые кухню, шкаф с холодильником в коридоре, шкаф для верхней одежды при входе и гардеробная.
Детали проекта
Количество комнат:
2
Зону коридора отделили стеной с двумя нишами по разным сторонам, таким образом со стороны коридора мы встроили шкаф для верхней одежды и обуви, а со стороны гостиной кухонные шкафы.

Большой шкаф для хранения из коридора "перетекает" в зону кухни и оканчивается встроенным холодильником.
Из коридора мы попадаем в ванную комнату. Напротив входа мы разместили две инсталляции, которые потом зашили крупногабаритным керамогранитом, тем самым получив удобную полочку. Рядом со стиральной машиной расположился шкаф с коммуникациями и для хранения.

Фишкой ванной комнаты служит огромное зеркало, которое заняло всю площадь оставшейся стены от стояка до короба, который ограничивает ванную.
Зона кухни делится на две части. В первой хранение бытовой техники, так как хозяйка активно пользуется грилями, кофемашиной, микроволновкой и проч. Но визуально все это должно быть спрятано. Мы подвели вторую вытяжку в шкаф и сделали его закрытым. Вторая зона стандартная - раковина, посудомойка и плита на 2 конфорки, плитой пользуются редко, поэтому приоритет к большему рабочему пространству.
Из гостиной можно попасть в кабинет и спальню. Вход в спальню выполнен нестандартными по высоте двустворчатыми дверьми.
В спальне присутствует балкон. Мы убрали подоконный блок и остекление с самого балкона, для того чтобы оставить улицу прям за стеной спальни и пустить как можно больше света в комнату.
За изголовьем кровати располагается гардеробная комната, войти в нее можно с двух сторон кровати.
Несмотря на визуальную простоту и минимализм интерьера, квартира получилась насыщенной на нестандартные решения от проектирования стен под готовую мебель, до подбора цветовых схем так же под готовую мебель, двери и прочее.
Весь пол был сделан в едином уровне и кварцвиниле, включая балкон и ванную. Для скорости реализации стены собирались из гипсокартона, усиливаясь локально под мебель или технику, потолки из гипсокартона с шумоизоляцией. Дверь на балкон с теплым стеклопакетом и фурнитурой в цвет золотых деталей интерьера. Так же проводка была выполнена под систему умного дома с Алисой.
Выстроенная система работы с клиентом. Организационные вопросы решаются с менеджером студии, а рабочие вопросы согласовываютсяс дизайнером.
У нас нет цели затягивать процессы, сделаем всё за 30 дней, и ты сможешь быстрее приступить к ремонту.
Сэкономят тебе деньги и нервы на переделках и косяках, ведь мы учтём все нюансы до старта ремонтных работ.
Получи ощущение реального присутствия в новой квартире с ремонтом
Любые вопросы решаем оперативно. Нет нужды каждый раз приезжать к нам в офис.
Живёшь в другом городе, но нравятся наши проекты? Не переживай. Мы работаем по всей России. Все технические замеры будут осуществлены профессионалами в твоём городе.
За 2 часа общения с дизайнером с 7-ми летним опытом работы ты будешь точно знать, какую квартиру приобретать
Готовы начать?
Оставьте заявку и получите консультацию дизайнера в подарок
Системность
Проектирование за 30 дней
50 листов чертежей
Фотореалистичность
Анализ перед покупкой
Онлайн
По всей России
Ещё 7 причин, почему нас выбирают
Специальное предложение
Скидка 10% , при заказе "Полного проекта" до 30 числа
Специальное предложение
Скидка 10% , при заказе "Полного проекта" до 30 числа
Made on
Tilda