#Volga_HighTech_Project
#Volga_HighTech_
Project
До и после

Volga_HighTech_Project

Площадь:
73 м²
Стиль дизайна:
Авторский
Тип объекта:
Жилая недвижимость
Заказчик:
Молодой человек
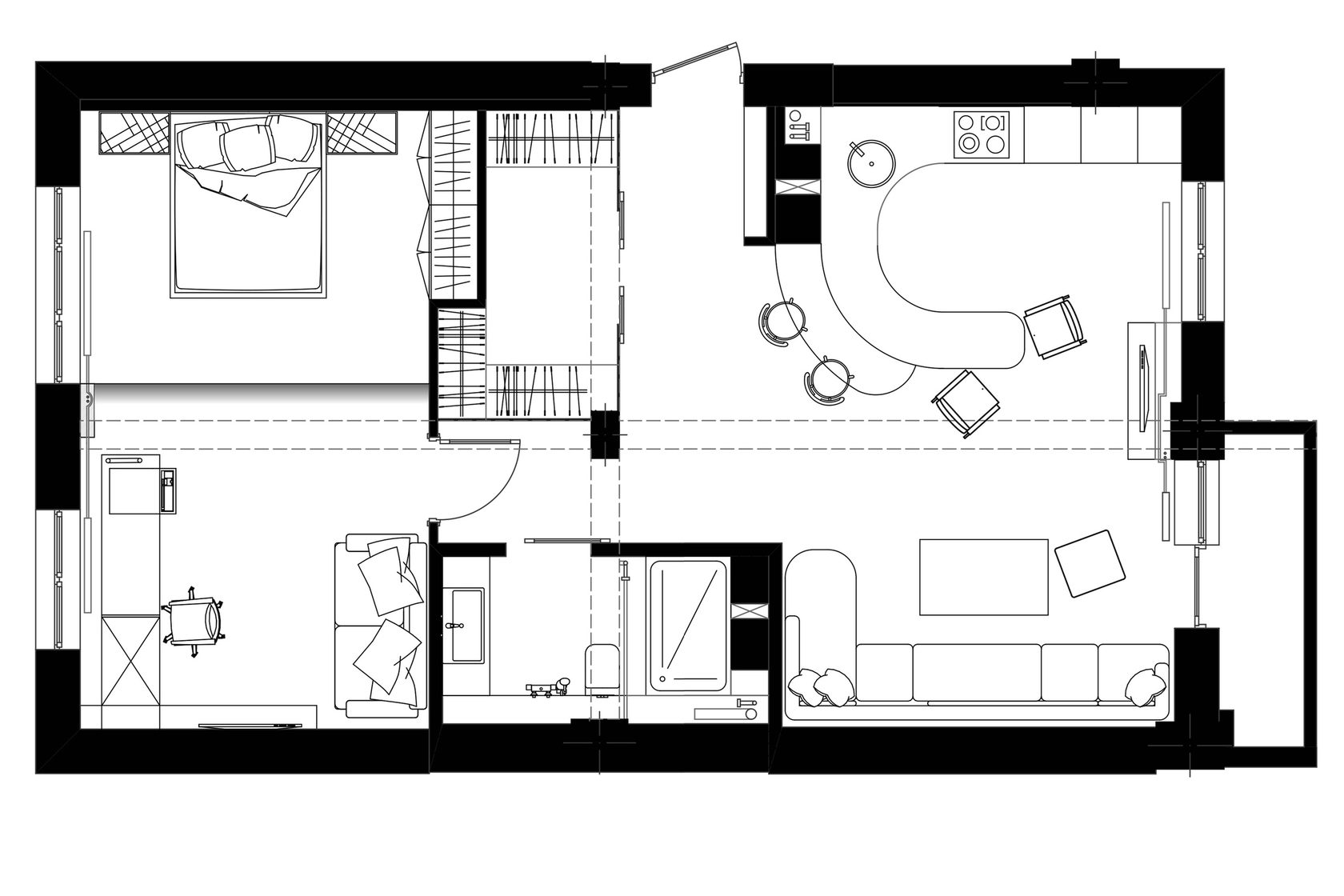
Квартира для холостяка с эффектным видом на Волгу. При перепланировке этой квартиры мы устроили при входе большую гардеробную, спроектированную полностью из стекла, объединили сан/узел и ванную комнату, сделали просторную кухню-гостиную, из которой открывается отличный вид, а также выделили приватную зону, в которой находится спальное место и рабочий кабинет. Кровать в новой большой спальне подняли на подиум.
Детали проекта
Количество комнат:
3
Изюминкой интерьера стала черная матовая кухня с полуостровом. Каждый из нас мечтал о своей большой кухне (наверное:)), как и наш заказчик. Тут и еду приготовить, и с друзьями за баром посидеть, и с семьей пообедать. Полукруглый остров разделяет собой кухню от пространства гостиной. До планировки отдельные комнаты квартиры были не маленькими, а сейчас мы имеем очень просторную и светлую кухню- гостиную. Что еще нужно для счастья холостяку.
Выстроенная система работы с клиентом. Организационные вопросы решаются с менеджером студии, а рабочие вопросы согласовываютсяс дизайнером.
У нас нет цели затягивать процессы, сделаем всё за 30 дней, и ты сможешь быстрее приступить к ремонту.
Сэкономят тебе деньги и нервы на переделках и косяках, ведь мы учтём все нюансы до старта ремонтных работ.
Получи ощущение реального присутствия в новой квартире с ремонтом
Любые вопросы решаем оперативно. Нет нужды каждый раз приезжать к нам в офис.
Живёшь в другом городе, но нравятся наши проекты? Не переживай. Мы работаем по всей России. Все технические замеры будут осуществлены профессионалами в твоём городе.
За 2 часа общения с дизайнером с 7-ми летним опытом работы ты будешь точно знать, какую квартиру приобретать
Готовы начать?
Оставьте заявку и получите консультацию дизайнера в подарок
Системность
Проектирование за 30 дней
50 листов чертежей
Фотореалистичность
Анализ перед покупкой
Онлайн
По всей России
Ещё 7 причин, почему нас выбирают
Специальное предложение
Скидка 10% , при заказе "Полного проекта" до 30 числа
Специальное предложение
Детская комната в подарок, при заказе технического проекта до 31 октября
Made on
Tilda