#Двухэтажная квартира для молодой семьи в таунхаусе
#Двухэтажная квартира для молодой семьи в таунхаусе
До и после

Двухэтажная квартира для молодой семьи в таунхаусе

Площадь:
158м²
Стиль дизайна:
Авторский
Тип объекта:
Таунхаус
Заказчик:
Молодая семья из 2-х человек
В данном проекте был запрос на яркий и динамичный дизайн интерьера, который бы подчеркивал характер проживающей там семьи. Нестандартное пространство квартиры и настрой заказчиков на эксперименты, позволили нам добавить в этот проект очень насыщенные цветовые акценты, на которые решился бы не каждый.
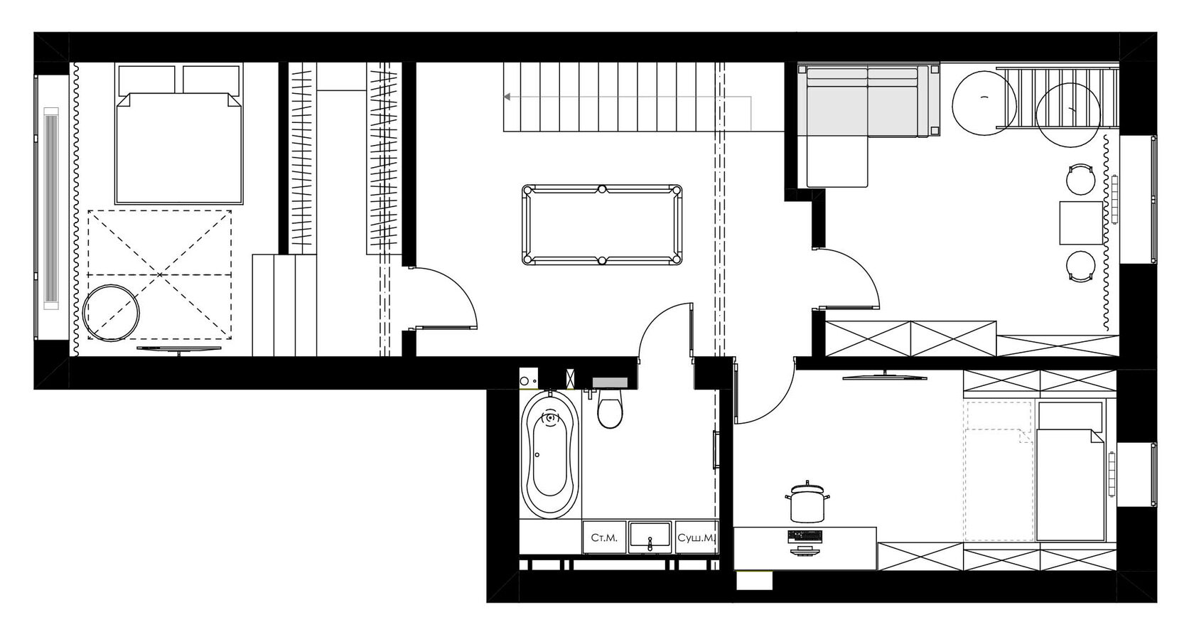
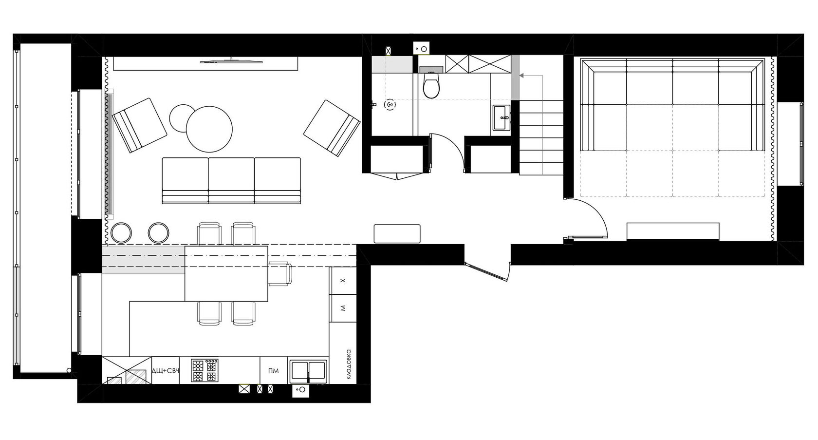
На первом этаже расположены прихожая, кухня-гостиная, кинозал и сан/узел. На втором: общий холл с зоной отдыха, мастер-спальня с гардеробной, детская, ванная комната и кабинет.
Детали проекта
Количество комнат:
5
Множество функциональных зон гостиной дополняется большим количеством световых сценариев в данном пространстве. Здесь есть точечная подсветка в зоне кухни, люстра над обеденным столом, подвесы над барной стойкой, трековая система встроенная в потолок над диванной зоной, а также можно оставить только камин и теплую желтую подсветку кухни для создания максимально уютной и теплой атмосферы.
Два контрастных цветовых акцента: ультрамарин и сочный желтый, дополнены сложной и спокойной текстурой стен и мебели.
Небольшой сан/узел первого этажа, тем не менее вместил в себя всё необходимое: раковину с зеркалом, унитаз с зоной хранения, встроенной над ним, а так же просторную душевую с тропическим душем.
Цветовая гамма выдержана в стиле кухни-гостиной.
Холл второго этажа сконцентрировал в себе много не стандартных решений по отделке стен: яркая декоративная штукатурка, молдинги, панели под дерево со вставками зеркал и декоративный элемент в виде цветочного панно над лестницей. Комната проходная и двери в комнаты хотелось не делать акцентами, поэтому они выполнены в системе инвизибл и в той же отделке, что и стены.
Главная спальня вся заполнена очень глубоким и насыщенным сине-бирюзовым цветом, который в зависимости от настроения и освещения может как успокаивать, так и наполнять энергией.
За счет достаточно большой высоты этажа получилось поднять кровать на подиум, в котором ещё дополнительно устроена зона хранения. А высоту спальной зоны дополнительно подчеркивают вертикальные молдинги за кроватью.
При входе в комнату также предусмотрена большая и очень вместительная гардеробная с подсвеченными высокими стеклянными дверками в латунных молдингах, что придает ей вид не простого шкафа для одежды, а эффектной выставочной витрины.
Хозяйская ванная комната выполнена в эффектном сочетании белого каррарского мрамора и золотых элементов. Кристально чистая и светлая ванная с тщательно подобранными декоративными элементами, является совсем не втростепенным помещением в доме.
Детская комната проектировалась на будущее, поэтому необходимо было выполнить ее в цветовой гамме, которая подойдет и мальчику и девочке. Мы предложили использовать натуральную природную гамму, а цветовые акценты были сделаны в нескольких вариантах, с возможностью выбора в дальнейшем.
Функционально также требовалось наполнить пространство большим количеством зон. Здесь есть спальная зона в два уровня, отделанная мягкими панелями. Активный уголок состоит из шведской стенки, стены для скалолазания и качелей. Детский столик для игры и обучения выделен зоной с дополнительной подсветкой на потолке и декором в виде облаков. Большой шкаф и входная дверь скрыты за фотообоями со сказочным лесом.
Кабинет выполнен в стиле несколько отличном от всей квартиры, так как он должен погружать в рабочую атмосферу и помогать концентрироваться. Поэтому здесь нет ярких цветов, а только спокойные натуральные оттенки и более классический стиль отделки.
Выстроенная система работы с клиентом. Организационные вопросы решаются с менеджером студии, а рабочие вопросы согласовываютсяс дизайнером.
У нас нет цели затягивать процессы, сделаем всё за 30 дней, и ты сможешь быстрее приступить к ремонту.
Сэкономят тебе деньги и нервы на переделках и косяках, ведь мы учтём все нюансы до старта ремонтных работ.
Получи ощущение реального присутствия в новой квартире с ремонтом
Любые вопросы решаем оперативно. Нет нужды каждый раз приезжать к нам в офис.
Живёшь в другом городе, но нравятся наши проекты? Не переживай. Мы работаем по всей России. Все технические замеры будут осуществлены профессионалами в твоём городе.
За 2 часа общения с дизайнером с 7-ми летним опытом работы ты будешь точно знать, какую квартиру приобретать
Готовы начать?
Оставьте заявку и получите консультацию дизайнера в подарок
Системность
Проектирование за 30 дней
50 листов чертежей
Фотореалистичность
Анализ перед покупкой
Онлайн
По всей России
Ещё 7 причин, почему нас выбирают
Специальное предложение
Скидка 10% , при заказе "Полного проекта" до 30 числа
Специальное предложение
Скидка 10% , при заказе "Полного проекта" до 30 числа
Made on
Tilda