#Scandinavian_Loft
#Scandinavian_Loft
До и после

Scandinavian_Loft

Площадь:
59 м²
Стиль дизайна:
Авторский
Тип обьекта:
Жилая недвижимость
Заказчик:
Молодая девушка
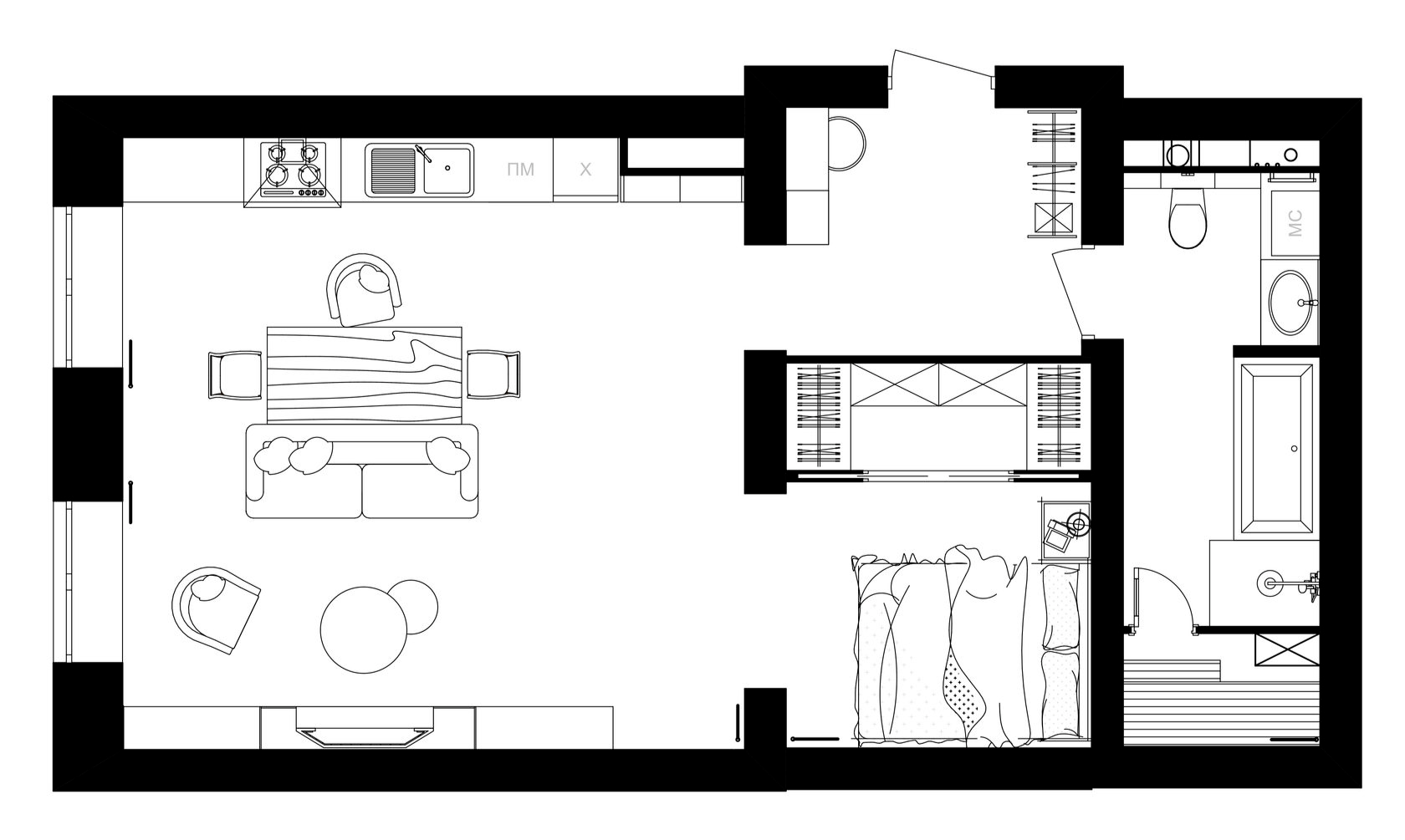
Квартира-студия была приобретена родителями для своей дочери. Необычный дом в старом городе с необычной планировкой был выбран нашими заказчиками. Два высоких окна в большой просторной комнате сразу же привлекли наше внимание, а вытянутое пространство санузла очень удивило. В большой комнате мы сделали кухню-гостиную, маленькую комнату отдали под спальню с гардеробной, которую отделили большими раздвижными дверьми. А вот с ванной комнатой все намного интереснее. Тут разместился большой шкаф, в который мы спрятали коммуникации, раковина со стиральной машиной. ванная, душевая кабина и небольшая сауна на 2-х человек.
Детали проекта
Количество комнат:
1
По интерьеру квартиры сразу понятно - тут живет девушка. При этом мы создали не типично розовый дизайн квартиры. Сложный оттенок пыльно-розового цвета взят за акцент. Им выделены главная стена, двери и лепнина.
Большая работа так же была проделана с искусственным освещением картины. Светильники шары из розовой меди добавляют сияния интерьеру.
В квартире большая проходная прихожая. Ее фишкой стала шестиугольная плитка, интегрированная в паркетную доску и перетекающая на стену.
Так же мы решили отойти от привычного гардероба в понимании человека. Мы поставили открытую вешалку, которая идеально вписалась в пространство и стала отдельным предметом декора.
Выстроенная система работы с клиентом. Организационные вопросы решаются с менеджером студии, а рабочие вопросы согласовываютсяс дизайнером.
У нас нет цели затягивать процессы, сделаем всё за 30 дней, и ты сможешь быстрее приступить к ремонту.
Сэкономят тебе деньги и нервы на переделках и косяках, ведь мы учтём все нюансы до старта ремонтных работ.
Получи ощущение реального присутствия в новой квартире с ремонтом
Любые вопросы решаем оперативно. Нет нужды каждый раз приезжать к нам в офис.
Живёшь в другом городе, но нравятся наши проекты? Не переживай. Мы работаем по всей России. Все технические замеры будут осуществлены профессионалами в твоём городе.
За 2 часа общения с дизайнером с 7-ми летним опытом работы ты будешь точно знать, какую квартиру приобретать
Готовы начать?
Оставьте заявку и получите консультацию дизайнера в подарок
Системность
Проектирование за 30 дней
50 листов чертежей
Фотореалистичность
Анализ перед покупкой
Онлайн
По всей России
Ещё 7 причин, почему нас выбирают
Специальное предложение
Скидка 10% , при заказе "Полного проекта" до 30 числа
Специальное предложение
Детская комната в подарок, при заказе технического проекта до 31 октября
Made on
Tilda