#Оксюморон_
в_оттенках

#Оксюморон_в_оттенках
До и после

Оксюморон в оттенках

Площадь:
52 м²
Стиль дизайна:
Современный
Тип обьекта:
Жилая недвижимость
Заказчик:
Молодая девушка
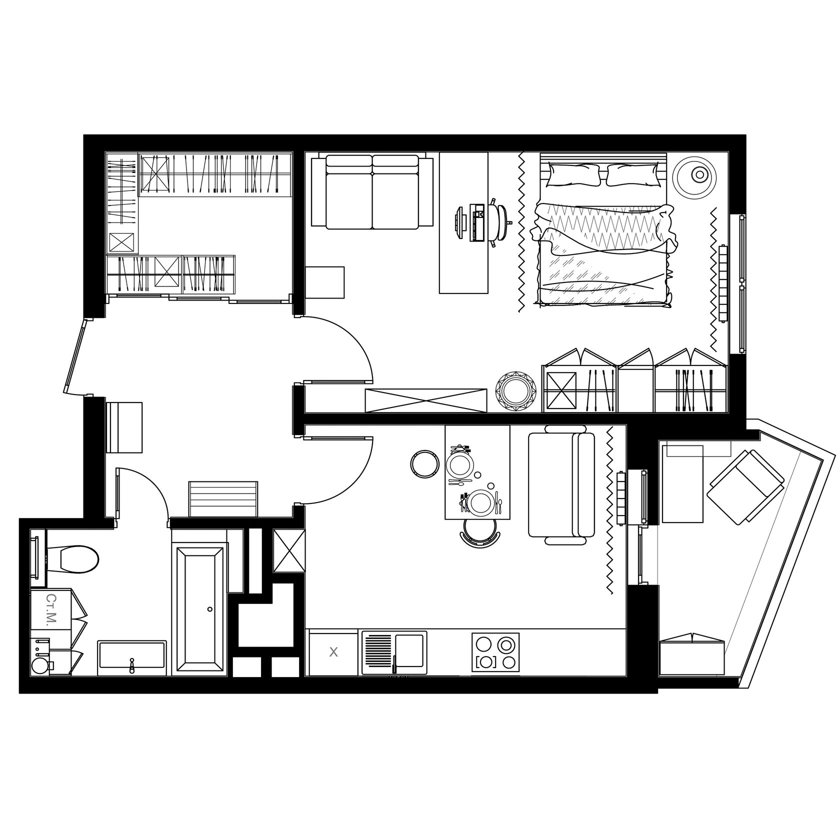
Наша заказчица - молодая девушка, которая любит готовить. Перепланировку она делать не хотела, поэтому поставила перед нами задачу - грамотно сделать расстановку мебели в каждой комнате. За счет большого коридора была организована гардеробная комната. Со стороны прихожей расположился шкаф для верхней одежды и обуви, а изнутри комнаты полноценная гардеробная. Комнату мы зонировали на спальную зону и рабочую со столом и диваном и разделили их портьерой. Ванная комната вместила в себя раковину, стиральную машину, прачечный шкаф, полотенцесушитель, унитаз и большую ванну. В нише мы организовали полочки для банных принадлежностей. Так же мы сделали несколько вариантов по пространству кухни, из которых заказчица выбрала классический вариант прямолинейного кухонного гарнитура и стол с диванчиком. В нише рядом с вент. каналом уместился шкаф для хранения кухонных принадлежностей.
Детали проекта
Количество комнат:
1
Для проекта мы выбрали спокойную гамму в холодных тонах и разбавили ее теплыми акцентами дерева на полу и межкомнатных дверях. Отличительной чертой проекта стал цвет стен в спальне, заходящий на потолок, и молдинги на потолке. Этот прием помог визуального увеличить высоту помещения комнаты.
Для отделки ванной комнаты были выбраны фактуры натуральных материалов - срез камня, имитация дерева на плитке, в тон которой подбирался пластик для отделки хозяйственного шкафа, где прячется стиральная машина. Ярким акцентом стал пол, отделанный плиткой пэчворк.
Выстроенная система работы с клиентом. Организационные вопросы решаются с менеджером студии, а рабочие вопросы согласовываютсяс дизайнером.
У нас нет цели затягивать процессы, сделаем всё за 30 дней, и ты сможешь быстрее приступить к ремонту.
Сэкономят тебе деньги и нервы на переделках и косяках, ведь мы учтём все нюансы до старта ремонтных работ.
Получи ощущение реального присутствия в новой квартире с ремонтом
Любые вопросы решаем оперативно. Нет нужды каждый раз приезжать к нам в офис.
Живёшь в другом городе, но нравятся наши проекты? Не переживай. Мы работаем по всей России. Все технические замеры будут осуществлены профессионалами в твоём городе.
За 2 часа общения с дизайнером с 7-ми летним опытом работы ты будешь точно знать, какую квартиру приобретать
Готовы начать?
Оставьте заявку и получите консультацию дизайнера в подарок
Системность
Проектирование за 30 дней
50 листов чертежей
Фотореалистичность
Анализ перед покупкой
Онлайн
По всей России
Ещё 7 причин, почему нас выбирают
Специальное предложение
Скидка 10% , при заказе "Полного проекта" до 30 числа
Специальное предложение
Детская комната в подарок, при заказе технического проекта до 31 октября
Made on
Tilda