Проект столовой для Политехнического колледжа г. Самара
Проект столовой для Политехнического колледжа г. Самара

Проект столовой для Политехнического колледжа г. Самара

Площадь:
80 м²
Стиль дизайна:
Авторский
Тип обьекта:
Столовая
Заказчик:
Самарский Политехнический
колледж
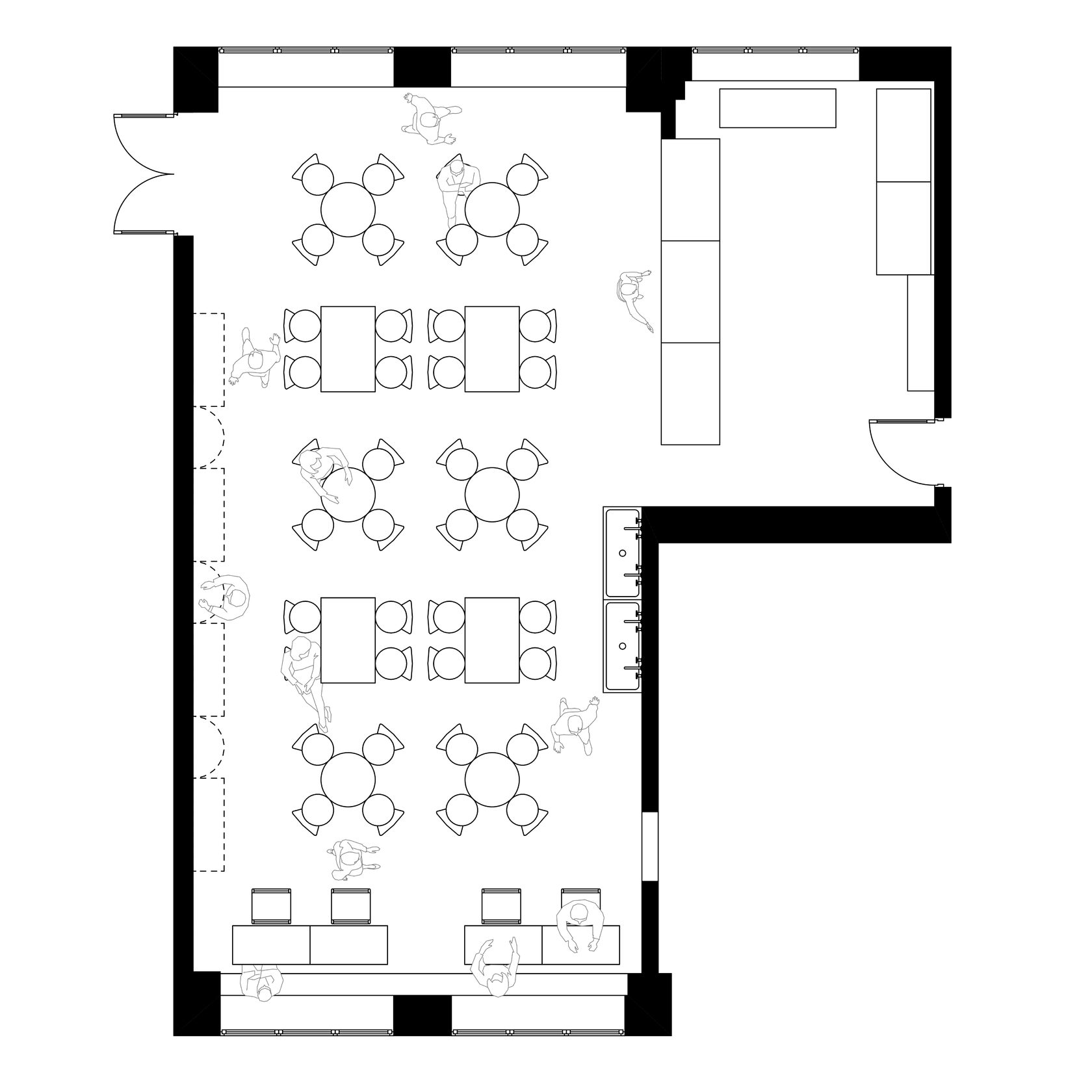
Нашу мастерскую пригласили для разработки дизайн-проекта столовой одного из самарских колледжей. Задачи перед нами стояли преобразить пространство, сделать его современным и стильным. Важными критериями были практичность и "неубиваемость" материалов. Четкая формулировка по цветам, которые нельзя использовать. Так же было необходимо разместить определенное количество студентов на обеде.
Мы взяли две формы столов - это круг и прямоугольник, которые задают определенный ритм геометрических форм в плане. Оборудовали дополнительными откидными стойками длинную стену. Когда эти стойки убираются, то на стене появляется рисунок из кругов и прямоугольников. Так же мы задействовали подоконники: сделали дополнительные места и заодно закрыли радиаторы-функционально и красиво.
Детали проекта
Выстроенная система работы с клиентом. Организационные вопросы решаются с менеджером студии, а рабочие вопросы согласовываютсяс дизайнером.
У нас нет цели затягивать процессы, сделаем всё за 30 дней, и ты сможешь быстрее приступить к ремонту.
Сэкономят тебе деньги и нервы на переделках и косяках, ведь мы учтём все нюансы до старта ремонтных работ.
Получи ощущение реального присутствия в новой квартире с ремонтом
Любые вопросы решаем оперативно. Нет нужды каждый раз приезжать к нам в офис.
Живёшь в другом городе, но нравятся наши проекты? Не переживай. Мы работаем по всей России. Все технические замеры будут осуществлены профессионалами в твоём городе.
За 2 часа общения с дизайнером с 7-ми летним опытом работы ты будешь точно знать, какую квартиру приобретать
Готовы начать?
Оставьте заявку и получите консультацию дизайнера в подарок
Системность
Проектирование за 30 дней
50 листов чертежей
Фотореалистичность
Анализ перед покупкой
Онлайн
По всей России
Ещё 7 причин, почему нас выбирают
Made on
Tilda