Проект офисного пространства в Бизнес-крепость "БАШНЯ"
Проект офисного пространства в Бизнес-крепость "БАШНЯ"

Проект офисного пространства в Бизнес-крепость "БАШНЯ"

Площадь:
563 м²
Стиль дизайна:
Авторский
Тип обьекта:
Коммерческая недвижимость
Заказчик:
ООО "Берег Девелопмент"
В наши руки были переданы помещения под офис, куда в сжатые сроки должна была переехать фирма заказчика. За три рабочих недели был разработан и согласован дизайн-проект и полтора месяца реализовывались работы. В процессе проектирования и авторского надзора мы решали большое количество задач, связанных с проектом и ремонтом, с разными ответственными лицами фирмы. Нам хорошо дается коммуникация, потому что мы умеем слушать и всегда даем обратную связь своевременно.

В данном проекте следует выделить тот факт, что нам удалось убедить клиента в том, что не только парадные помещения должны быть классными. Нам удалось донести, что офис - это пространство где множество людей проводит большую часть своей жизни и каждое из них заслуживает внимания. Мы благодарны клиенту за доверие, которое целиком и полностью оправдалось.

Детали проекта
Количество помещений:
3 этажа
В основу концепции дизайна легло светлое пространство ( освежили существующие стены), которое было удачно скомбинировано с алюминиевыми конструкциями с большой площадью стекла и деревянными панелями. Яркие акценты в виде стульев обращают наше внимание к знаковому элементу фирмы заказчика - это красный квадрат. Локально мы добавляли гипсовые панели и элементы зелени, что бы равномерно распределить финансы, при этом не уменьшить эффект от общего вида интерьера. Конечно кабинеты руководителей были сделаны каждый в своем образе, но не разделимы единым стилем. Нам удалось создать пространство для каждого индивидуально, в процессе мы много общались и пришло понимание кому и в каких условиях и с каким функционалом будет комфортно работать.

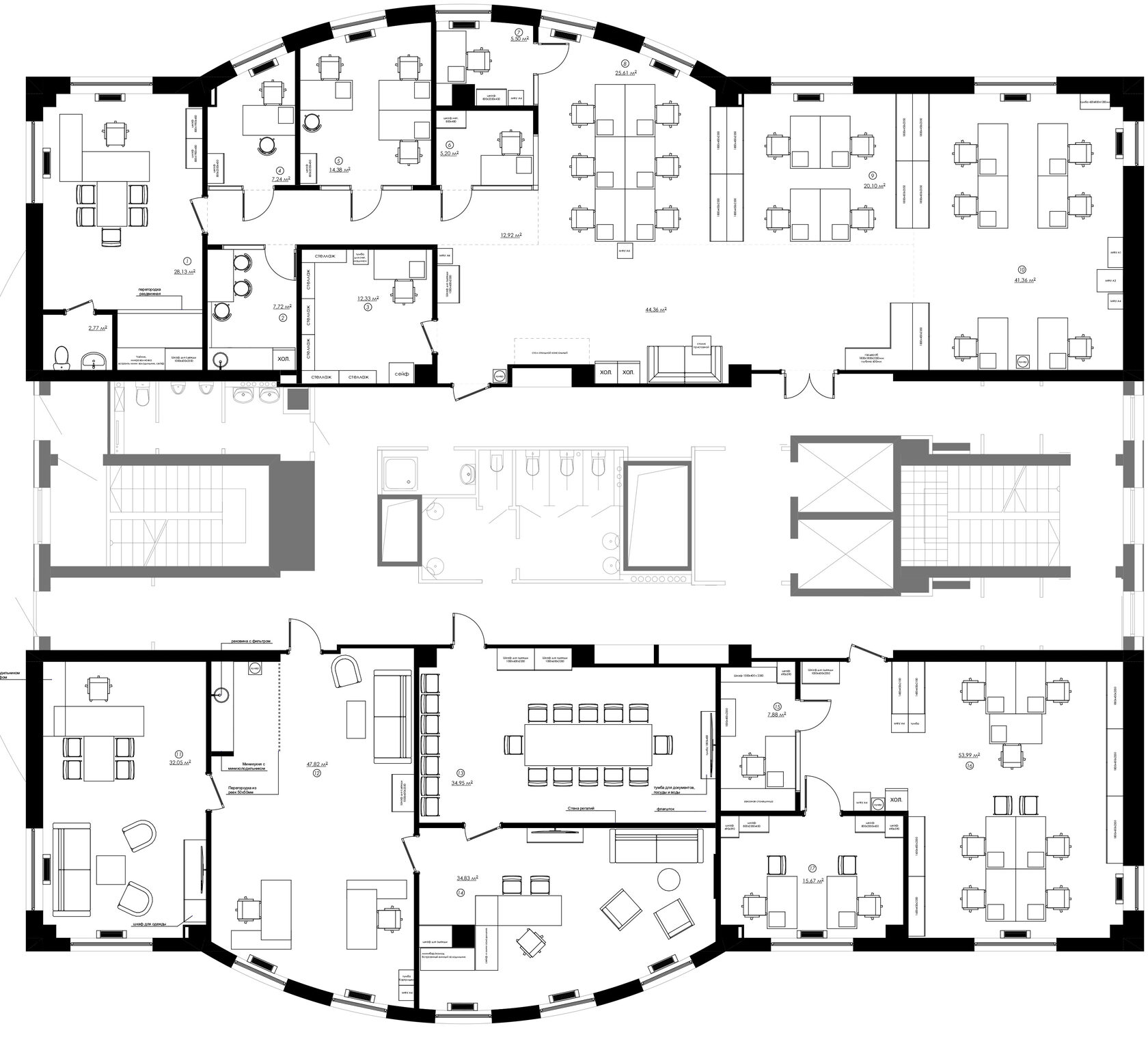
На первом этаже потенциальных клиентов фирмы встречает отдел продаж. Так же тут расположили помещения второстепенной важности, которые мы проработали в чертежах.
На примере кабинета бухгалтерии мы показали как будет выполнена отделка стен и наполнение помещения всех офисных пространств.
Далее приемная и два кабинета руководителей.
Ну и еще один кабинет руководителя :)
Выстроенная система работы с клиентом. Организационные вопросы решаются с менеджером студии, а рабочие вопросы согласовываютсяс дизайнером.
У нас нет цели затягивать процессы, сделаем всё за 30 дней, и ты сможешь быстрее приступить к ремонту.
Сэкономят тебе деньги и нервы на переделках и косяках, ведь мы учтём все нюансы до старта ремонтных работ.
Получи ощущение реального присутствия в новой квартире с ремонтом
Любые вопросы решаем оперативно. Нет нужды каждый раз приезжать к нам в офис.
Живёшь в другом городе, но нравятся наши проекты? Не переживай. Мы работаем по всей России. Все технические замеры будут осуществлены профессионалами в твоём городе.
За 2 часа общения с дизайнером с 7-ми летним опытом работы ты будешь точно знать, какую квартиру приобретать
Готовы начать?
Оставьте заявку и получите консультацию дизайнера в подарок
Системность
Проектирование за 30 дней
50 листов чертежей
Фотореалистичность
Анализ перед покупкой
Онлайн
По всей России
Ещё 7 причин, почему нас выбирают
Made on
Tilda