Семейный ресторан "Компот", г. Тольятти
Семейный ресторан "Компот", г. Тольятти

Семейный ресторан "Компот", г. Тольятти

Площадь:
130 м²
Стиль дизайна:
Авторский
Тип обьекта:
Частная недвижимость
«Кот, компот и родня»- так мы предложили назвать загородный комплекс - наш объект в г.Тольятти
Это семейное дело -кормить людей. Дело нашего заказчика и его родителей.
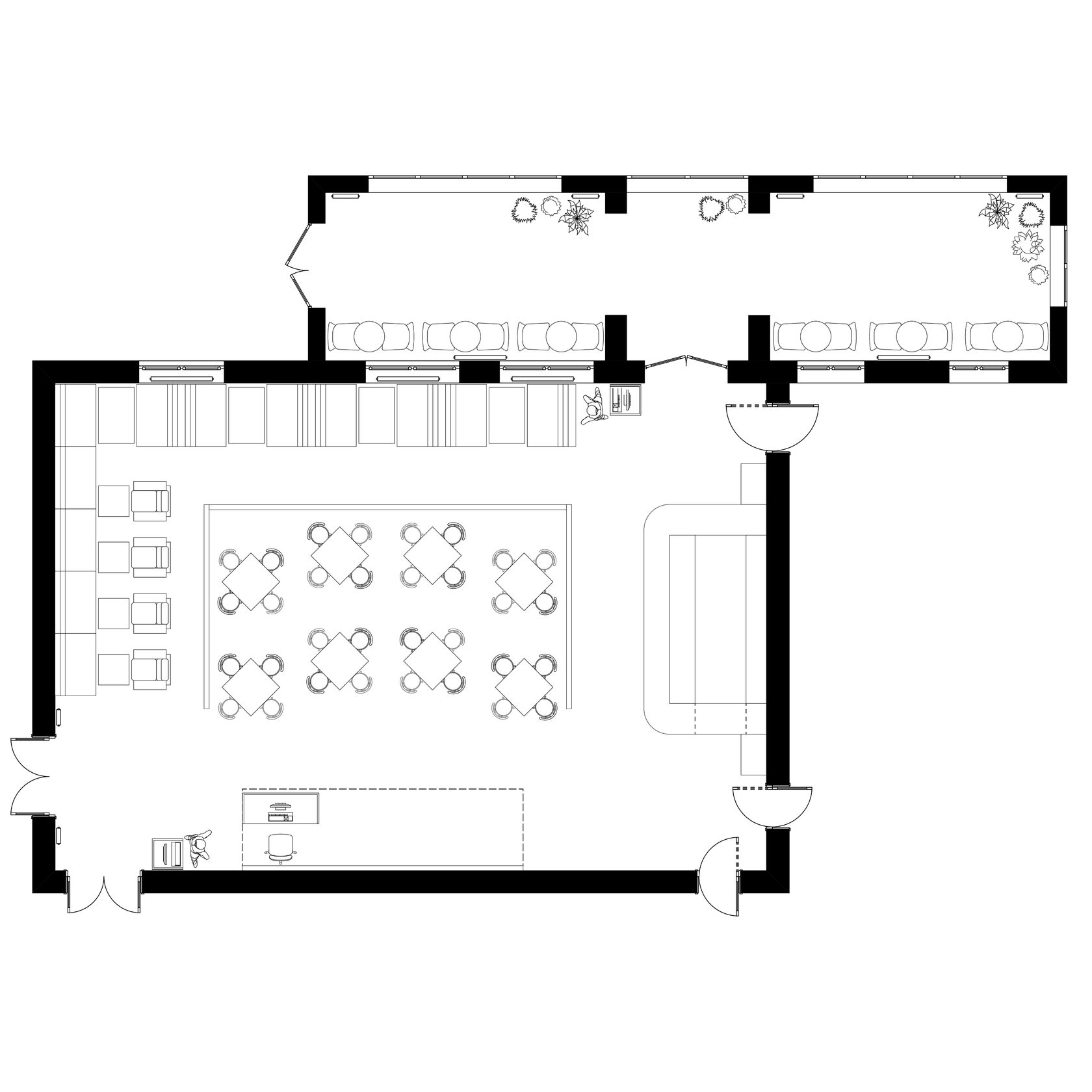
Небольшой 2-х этажный объект, с классной летней верандой достался нам в работу. Главный зал , по задумке клиента, в обычном режиме работает как семейный ресторанчик, но должен легко трансформироваться для банкетов и прочих мероприятий.

Когда мы зашли на объект некоторое материалы уже были куплены, мы постарались их вписать в новую концепцию. Натуральные материалы, теплые акценты, такие уютные клечатые кресла. Перегородка в центре комнаты зонирует пространство в будние дни и легко складывается в дни мероприятий.

Тут так же присутствует сервис-бар и мини сцена, которую так же при желании можно демонтировать и собрать в другом месте.
Детали проекта
Выстроенная система работы с клиентом. Организационные вопросы решаются с менеджером студии, а рабочие вопросы согласовываютсяс дизайнером.
У нас нет цели затягивать процессы, сделаем всё за 30 дней, и ты сможешь быстрее приступить к ремонту.
Сэкономят тебе деньги и нервы на переделках и косяках, ведь мы учтём все нюансы до старта ремонтных работ.
Получи ощущение реального присутствия в новой квартире с ремонтом
Любые вопросы решаем оперативно. Нет нужды каждый раз приезжать к нам в офис.
Живёшь в другом городе, но нравятся наши проекты? Не переживай. Мы работаем по всей России. Все технические замеры будут осуществлены профессионалами в твоём городе.
За 2 часа общения с дизайнером с 7-ми летним опытом работы ты будешь точно знать, какую квартиру приобретать
Готовы начать?
Оставьте заявку и получите консультацию дизайнера в подарок
Системность
Проектирование за 30 дней
50 листов чертежей
Фотореалистичность
Анализ перед покупкой
Онлайн
По всей России
Ещё 7 причин, почему нас выбирают
Made on
Tilda