Фермерский рынок в г. Тольятти
Фермерский рынок в г. Тольятти

Фермерский рынок в г. Тольятти

Площадь:
ок. 1400 м²
Стиль дизайна:
Авторский
Тип объекта:
Коммерческая недвижимость
Заказчик:
Частное лицо
С гордостью мы рады вам представить наш проект реорганизации площадки бывшего автосалона под фермерский рынок. Пожалуй, на сегодняшний день это наш самый масштабный проект. Визуализации , которые вы увидите в альбоме, только начало работ на этой огромной площадке. Мы сделали сочную концепцию и визуалки для коммерческого предложения и будущих арендаторов.

И нам самим потрясно от того на сколько круто все получилось. За красивыми картинками скрывается кропотливая работа не только дизайнеров, но и коммерческого и финансового директора объекта, так же самого инвестора и наших партнеров по снабжению в сфере horeca Irengo
Детали проекта
Количество комнат:
-
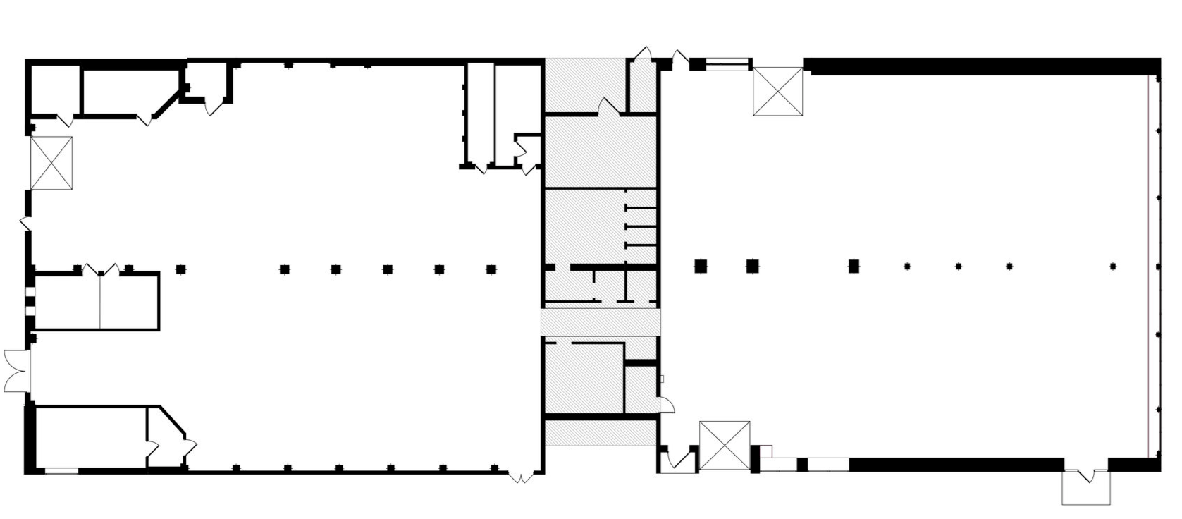
Работа над этим проектом разделилась на две части. В первую очередь мы занялись планированием внутреннего пространства. Инвестору нужно было понимать сколько арендаторов он сможет привлечь и посчитать срок окупаемости проекта. С заделом на будущее мы спланировали расположение витрин и моек. Чтобы снять с арендатора головную боль по отделке своей очки, мы с заказчиком сделали концепцию и визуализацию интерьера и того как в нашем представлении должен выглядеть современный фермерский рынок
Во вторую очередь мы занялись внешним видом объекта. Само здание как "Франкенштейн", слеплено из разных кусочков воедино. перестраивать все было бы слишком дорого, поэтому мы надели на него новую оболочку.
Выстроенная система работы с клиентом. Организационные вопросы решаются с менеджером студии, а рабочие вопросы согласовываютсяс дизайнером.
У нас нет цели затягивать процессы, сделаем всё за 30 дней, и ты сможешь быстрее приступить к ремонту.
Сэкономят тебе деньги и нервы на переделках и косяках, ведь мы учтём все нюансы до старта ремонтных работ.
Получи ощущение реального присутствия в новой квартире с ремонтом
Любые вопросы решаем оперативно. Нет нужды каждый раз приезжать к нам в офис.
Живёшь в другом городе, но нравятся наши проекты? Не переживай. Мы работаем по всей России. Все технические замеры будут осуществлены профессионалами в твоём городе.
За 2 часа общения с дизайнером с 7-ми летним опытом работы ты будешь точно знать, какую квартиру приобретать
Готовы начать?
Оставьте заявку и получите консультацию дизайнера в подарок
Системность
Проектирование за 30 дней
50 листов чертежей
Фотореалистичность
Анализ перед покупкой
Онлайн
По всей России
Ещё 7 причин, почему нас выбирают
Made on
Tilda