СЕМЕЙНОЕ КАФЕ
"БЛИНROCKY" Г. ПУГАЧЕВ
СЕМЕЙНОЕ КАФЕ "БЛИНROCKY" Г. ПУГАЧЕВ

СЕМЕЙНОЕ КАФЕ "БЛИНROCKY" Г. ПУГАЧЕВ

Площадь:
120 м²
Стиль дизайна:
Авторский
Тип обьекта:
Коммерческая недвижимость
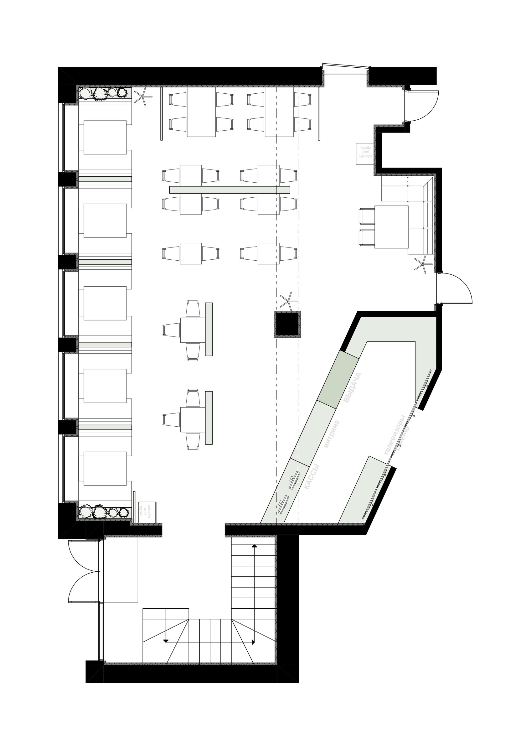
Расширяем географию наших работ. Это прекрасное семейное кафе находится в г. Пугачев, Саратовской области. Заказчики обратились к нам с задачей сделать интерьер кафе, который бы подсознательно считывался у гостей как один из сетевых ресторанов. Интерьер издалека напоминает "Макдоналдс" или "Кфс".
У клиентов были так же разработаны название и персонажи как часть айдентики. Задача стояла вписать персонажей в интерьер. Залог классного интерьера - это идея, поэтому сначала мы согласовали концепцию...
Детали проекта
Заказчик:
Частное лицо
Искренне считаем, что справились с поставленными задачами на 100% и обзавелись еще одним любимчиком среди проектов. Желаем Заказчикам лучшей и легкой реализации!
Выстроенная система работы с клиентом. Организационные вопросы решаются с менеджером студии, а рабочие вопросы согласовываютсяс дизайнером.
У нас нет цели затягивать процессы, сделаем всё за 30 дней, и ты сможешь быстрее приступить к ремонту.
Сэкономят тебе деньги и нервы на переделках и косяках, ведь мы учтём все нюансы до старта ремонтных работ.
Получи ощущение реального присутствия в новой квартире с ремонтом
Любые вопросы решаем оперативно. Нет нужды каждый раз приезжать к нам в офис.
Живёшь в другом городе, но нравятся наши проекты? Не переживай. Мы работаем по всей России. Все технические замеры будут осуществлены профессионалами в твоём городе.
За 2 часа общения с дизайнером с 7-ми летним опытом работы ты будешь точно знать, какую квартиру приобретать
Готовы начать?
Оставьте заявку и получите консультацию дизайнера в подарок
Системность
Проектирование за 30 дней
50 листов чертежей
Фотореалистичность
Анализ перед покупкой
Онлайн
По всей России
Ещё 7 причин, почему нас выбирают
Made on
Tilda